CAD Monke Ltd

Architectural & Manufacturing Design

Alkincote Street, Keighley – Industrial Unit Development

Project Overview

Project Name: Alkincote Street, Keighley
Location: Keighley, West Yorkshire
Client: Private developer
Project Type: Planning and Building Control approval for new industrial unit
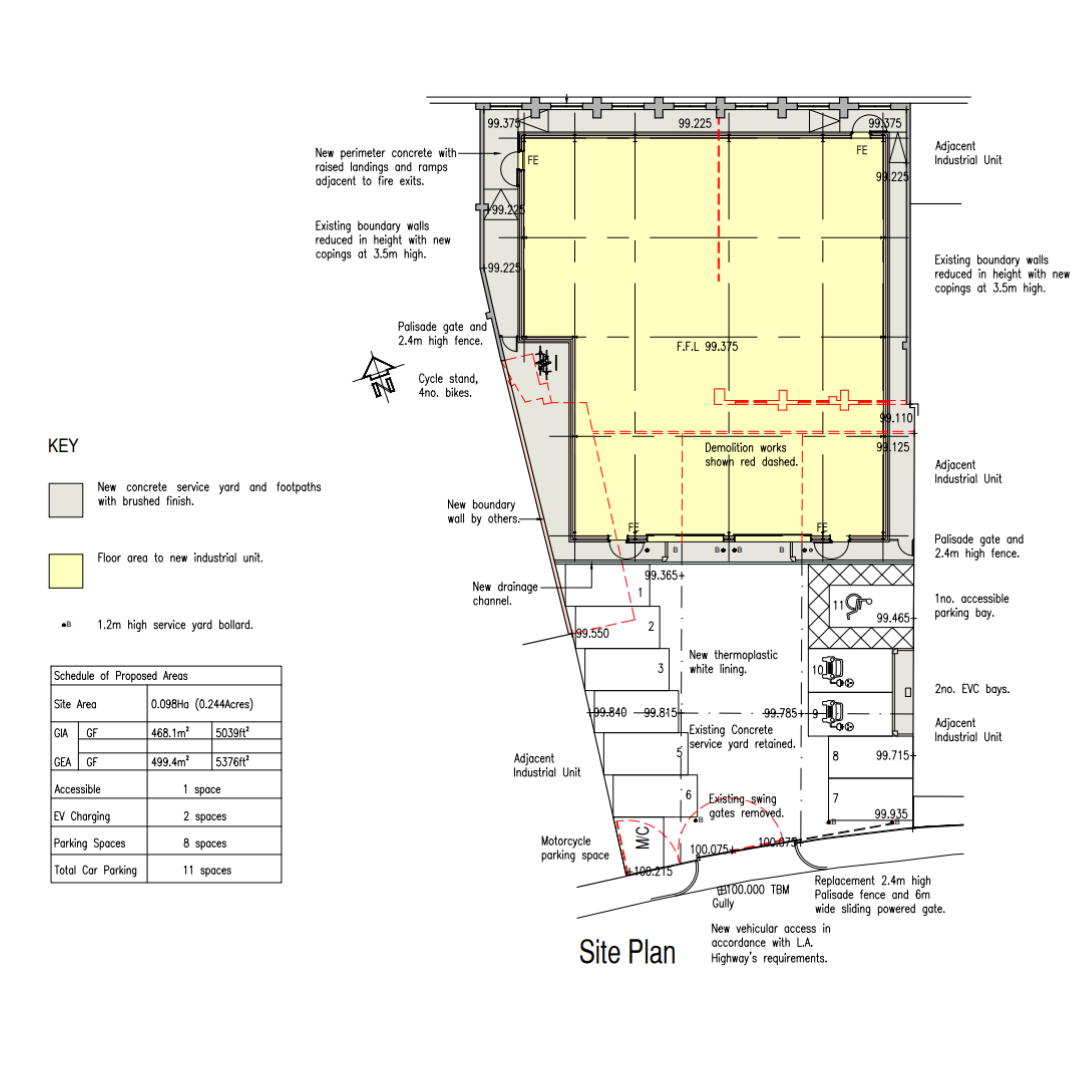
Scale: 6,000 sq ft industrial unit with 4,500 sq ft of parking and yard area; steel portal frame construction; 8 metre ridge height.
The project involved the redevelopment of a former motor vehicle salvage yard into a modern industrial unit, maximising the site footprint while addressing environmental, structural, and planning considerations. CAD Monke Ltd provided a full-service approach from site survey through to planning and building control approvals.

Our Role

CAD Monke Ltd provided multi-disciplinary services including: planning consultancy, land surveying, architectural technologist services, design, and drafting. We guided the client through every stage, from site analysis to submission of approvals and tender-ready documentation.

The Site

The site was surrounded by traditionally constructed industrial units occupied by engineering and mechanical businesses. A large retaining wall to the rear introduced structural and planning complexities. Due to the sloping nature of the site, CAD Monke completed a full measured land and topographical survey to inform design and planning.

The client’s aim to maximise the developable footprint required the building shape to follow irregular site boundaries. Additional challenges included:
  • Environmental remediation due to previous brownfield use
  • Structural and planning considerations for the retaining wall
  • Planning constraints relating to visibility, massing, and overshadowing of neighbouring properties
  • Surveying and documenting a dilapidated existing building on site with full health and safety precautions

The Brief

Client Objective
Develop a new industrial unit to replace a currently rented facility, tailored to their operational needs.
Specific Requirements
  • Large full-height roller shutter doors
  • Internal height sufficient for lifting high-roof vans on service ramps
  • Mezzanine office space occupying half of the unit
  • Accurate survey data capturing existing site topography and structures
End Goal
Deliver full planning and building control approval, along with tender-ready drawings and specifications, and provide ongoing support throughout construction.

Constraints & Challenges

Design Constraints
  • Large retaining wall at the rear of the site
  • Environmental constraints due to brownfield site history
  • Existing dilapidated building requiring safe survey and drawings to accompany planning application
Planning Constraints
  • Compliance with local authority Supplementary Planning Documents (SPD)
  • Maintaining acceptable visibility, massing, and overshadowing for neighbouring properties
Structural / Environmental Challenges
  • Collaboration with third-party structural engineers to ensure design feasibility
  • Maximising space on a sloping site while maintaining workflow, access, and safety

Our Approach 

Project Management
Coordinated all roles to collect, consolidate, and submit planning and building control applications. Managed council queries and ensured timely provision of additional information.
 
Surveying / Technical Execution
Conducted measured surveys of the existing building and full topographical survey of the site, capturing accurate data safely and efficiently.
 
CAD / Drafting Outputs
Converted survey data into 2D AutoCAD drawings, accurately representing site topography and layout. Developed draft proposals, then finalised plans, 
 
elevations, sections, and construction details for approvals.
Collaboration with Contractors / Specialists
Liaised with structural engineers, environmental specialists, and third-party contractors to manage client expectations and ensure all technical considerations were addressed.

Outcome

Deliverables Achieved
  • Full planning approval granted first time without conditions
  • Complete building control drawings and specifications ready for tender
  • Project delivered on time and within budget
Client Satisfaction
The client was extremely satisfied with CAD Monke Ltd’s input, guidance, and professionalism.

Our Value

Demonstrating Expertise
CAD Monke Ltd is a reliable partner for commercial and industrial developments, capable of delivering multi-disciplinary services including planning, building regulation approval, surveying, and drafting.
 
Value for Future Clients
Clients can rely on CAD Monke’s ability to manage complex brownfield sites, coordinating multiple disciplines and removing the project management burden, ensuring projects progress smoothly from concept to construction.

CAD Monke Ltd combines multi-disciplinary expertise with hands-on project management, delivering industrial development projects efficiently, safely, and professionally.

CONTACT

General Enquires: (01535) 281182
WhatsAPP: 07590 564087
Email: hello@cadmonke.co.uk
 

Copyright ©2021 CAD Monke. All Rights Reserved.