CAD Monke Ltd

Architectural & Manufacturing Design

Existing Site Layouts, national 

Project Overview

Project Name: Existing Site Survey for Woodlands Group
Location: National
Client: UK’s leading manufacturer of garden sheds
Project Type: Existing site surveys
Scale: Approximately 4 million sq ft across multiple sites
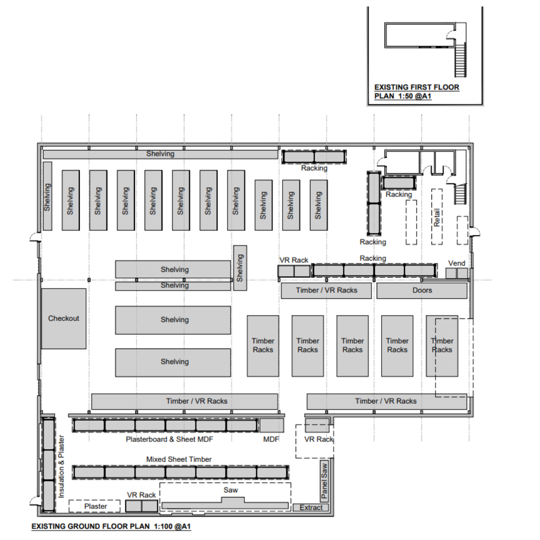
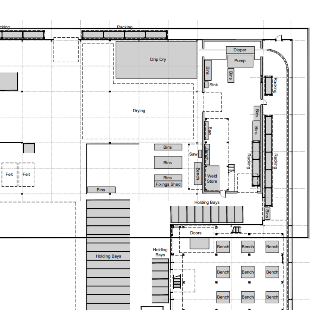
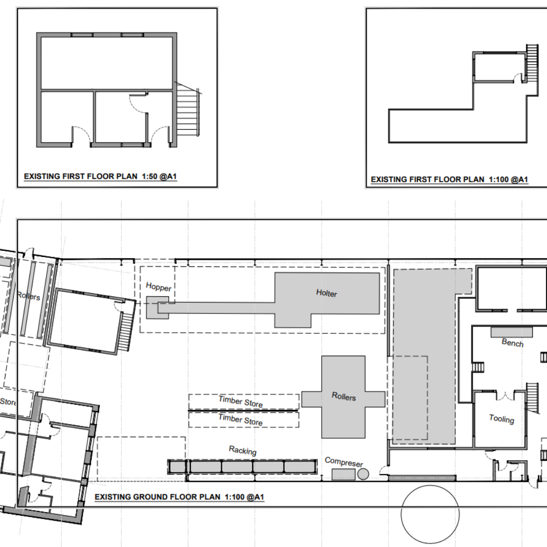
CAD Monke Ltd was commissioned to undertake full measured surveys across multiple sites nationally for a leading manufacturer. The project aimed to provide accurate existing site plans to support fire strategy drawings, space planning, and workflow streamlining initiatives.
CAD Monke Ltd was commissioned to undertake full measured surveys across multiple sites nationally for a leading manufacturer. The project aimed to provide accurate existing site plans to support fire strategy drawings, space planning, and workflow streamlining initiatives.

Our Role

CAD Monke provided a full-service solution, acting as:
  • Project Manager: Coordinating the survey programme and maintaining smooth company operations alongside day-to-day workloads.
  • Measured Building Surveyor: Conducting safe and accurate surveys using the latest laser measuring technology.
  • Architectural Draftsman: Producing precise 2D AutoCAD plans of all buildings, machinery, plant, and interior structures.
Additional data collected included photographs, drone footage, and condition reports to give a complete picture of site layouts and building conditions.

The Brief 

The client asked CAD Monke Ltd to strategically plan and coordinate visits to all sites in their portfolio. At each location, we undertook full measured surveys using the latest digital measuring tools. Once captured, the data was returned to CAD Monke HQ and plotted in 2D AutoCAD, creating accurate site layouts.
The client required all static items, including machinery, plant, and interior structures, to be accurately represented on the drawings. This provided a clear visualisation of their national portfolio to enable space planning, workflow redesign, and refurbishment projects.

Constraints & Challenges

  • Remote locations: Sites included logistically difficult areas such as the Scottish Highlands.
  • Health, safety, and inductions: Large manufacturing facilities required strict adherence to site safety protocols.
  • Limited on-site client guidance: Surveyors had no direct client contact on site, so understanding which machinery, plant, and equipment were most important to capture was critical.

Our Approach / Solution

Project management:
Coordinated and planned the safe, efficient survey of all sites, maintaining smooth day-to-day company operations throughout the long-term project.
Measured building survey:
Surveyors conducted accurate, safe surveys using the latest laser measuring equipment, ensuring reliable data capture for drafting.
CAD drafting and outputs:
Draftsmen plotted all site elements in 1:1 scale, using a bespoke layering structure to produce clear, readable layouts, delivered in multiple digital formats.
Additional deliverables:
Captured photographs, drone footage, and roof condition reports for a full visual and technical record.

Outcome

The project was completed on time and in full, with all measured data accurately captured and plotted. The client received complete site plans and layouts, and no return visits were required.
The client was highly satisfied with the project delivery and subsequently re-engaged CAD Monke Ltd to assist with space planning projects across their portfolio.
The completed drawings gave the client a comprehensive understanding of site layouts and available space, enabling consolidation of working areas, redesign of workflows within manufacturing facilities, and cost reduction and efficiency improvements.

Our Value

This project highlights CAD Monke Ltd’s flexibility and professionalism, showing our ability to manage a large-scale, long-term project while maintaining day-to-day business operations.
The knowledge and skills gained from measured surveys of manufacturing facilities — including understanding site-specific items critical to capture in drawings — now enable similar projects to be undertaken more efficiently and delivered faster, helping future clients progress their projects with confidence.
Accurate measured surveys unlock better planning, safer operations, and more efficient use of space across complex site portfolios.

CONTACT

General Enquires: (01535) 281182
WhatsAPP: 07590 564087
Email: hello@cadmonke.co.uk
 

Copyright ©2021 CAD Monke. All Rights Reserved.